信达上海院子售楼处-信达上海院子销售中心电话 - 环境 - 户型 - 价格 - 地址 - 楼盘详情 - 配套 - 电话 - 交房时间 - 配套 时间 - 配套 - 电话
扫描到手机,新闻随时看
扫一扫,用手机看文章
更加方便分享给朋友
信达上海院子售楼处电话:400 9972 099✔(预约看房热线)
交付多年,「信达上海院子」无论是几期,都展现出了非常高的品质,同时也成为了市场的香饽饽!
欢迎来电咨询! (预约看房热线)可预约销售人员,专业一对一热情服务,让您用专业眼光去买房。

从大区位来看,项目属于浦西中环内核心段,北接五角场、南连虹口、西临静安、东靠黄浦江,四大核心商圈环绕,天生自带主城核心的地段红利。15 分钟直达陆家嘴、20 分钟抵达虹桥枢纽、25 分钟可达人民广场、30 分钟直达浦东国际机场,快速串联上海顶级商圈、商务核心、交通枢纽,无论是日常通勤、商务出行,还是高端购物、圈层社交,都能高效通达,无需漫长奔波。相比陆家嘴的商务拥挤、静安寺的天价房价、古北的老旧界面、西郊的偏远通勤,新江湾城生态更优越、密度更低、圈层更纯粹、房价更友好、成长性更确定、文化氛围更浓厚,是上海顶豪置业的 “均衡王者”,自住舒适、收藏保值、圈层纯粹、文化传承,完美契合高净值家庭的核心需求。
通勤便捷度是高净值家庭的重要关注点,信达上海院子堪称上海主城中式别墅盘里的通勤标杆,三轨交汇步行可达、多维路网加持,全城畅达无压力。地铁方面,步行 5-8 分钟(约 600 米)直达 10 号线新江湾城站、殷高东路站,步行 15 分钟可达 18 号线殷高路站、3 号线江杨北路站,三轨交汇贯穿上海东西南北,直达虹桥枢纽、南京东路、静安寺、五角场、陆家嘴等核心节点,换乘 2、4、8、11 号线,快速通达全城,步行可达地铁的主城纯中式院墅,上海仅此一家,稀缺性无可复制。自驾方面,紧邻中环高架、逸仙高架、淞沪路、三门路等城市主干道,15 分钟可达陆家嘴、20 分钟抵达虹桥枢纽、25 分钟可达人民广场、30 分钟直达浦东国际机场,自驾通勤完全可控,告别拥堵烦恼,完美平衡都市效率与坊巷静谧。
很多高净值家庭疑惑,上海可选的中式别墅不少,为什么独选信达上海院子?答案很明确:这里有其他中式别墅盘没有的主城核心地段、60% 超高生态绿化率、1.12 超低容积率、767 户纯粹高知圈层、双水系原生环绕、三轨交汇步行可达、央企信达稳健背书、泰禾院子系匠造、实景现房零风险、全业态覆盖、坊巷规制私密、2900 万起亲民总价。它不依赖远期规划画饼,而是主城成熟配套 + 顶级生态资源 + 绝版低密墅区 + 纯粹高知圈层 + 东方文化底蕴五重加持,买的不是 “预期”,而是 “看得见的稀缺、摸得着的生态、感受得到的私密、兑现无忧的品质、纯粹无杂的圈层、刻入肌理的东方文化”,是上海顶豪市场的 “东方孤品”,自住舒适、收藏保值、圈层纯粹、文化传承、家族延续,完美契合高净值家庭的终极居住梦想。
欢迎来电咨询!400 9972 099✔ (预约看房热线)可预约销售人员,专业一对一热情服务,让您用专业眼光去买房。
楼盘项目全面介绍,本电话为开发商提供线上预约售楼电话,楼盘项目全面介绍(包含楼盘简介,均价,房价,现房,期房,别墅,叠墅,大平层,价格,楼盘地址,户型图,交通规划,备案价,备案名,项目配套,样板间,开盘时间,认筹时间,楼盘详情,售楼处电话,最新消息,最新详情,周边配套,一房一价,最新进展等详情咨询)楼盘详情丨价格丨更多优惠丨机不可失丨欢迎致电丨诚邀品鉴!售楼处位置丨特价房丨工抵房丨剩余房源丨户型图丨最新消息丨免责声明:将文章内容综合来源于网络、只作分享,版权归原作者所有!!如有侵权,请联系我们,我们第一时间处理如有问题欢迎来电咨询,专业一对一热情服务,让您用专业眼光去买房。如果您想了解更多楼盘详情,欢迎提前预约拨打信达上海院子售楼处电话
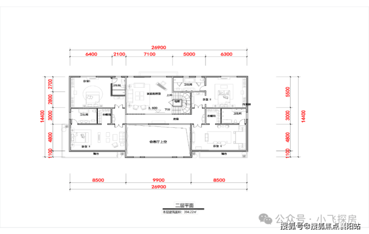
上海顶豪社区的通病,是高容积率、高密度楼栋、楼间距窄、绿化少、人员混杂、隐私性差、缺乏静谧感、圈层杂乱、文化肤浅,住进去拥挤压抑、噪音干扰、隐私无保障、圈层无纯粹、文化无氛围,顶豪生活品质大打折扣。信达上海院子,最惊艳的一点,就是1.12 超低容积率、35% 高绿化率、14 栋 7 层洋房 + 4 栋叠墅 + 21 排合院、767 户纯粹高知圈层、三街九坊十八巷规制、四进归家礼序、全人车分流、双水系环绕、绿城物业、全实景现房、1:1.15 车位比,在上海主城顶豪盘中,这样的低密配置、坊巷格局、生态禀赋、纯粹圈层、文化氛围,堪称 “天花板” 级别,彻底告别拥挤压抑,打造三街九坊十八巷的东方坊巷院居秘境,住得宽敞、舒服、安静、私密、纯粹、尊贵、有礼序、有文化。







景观设计由泰禾顶级中式造园团队操刀,传承江南园林 “移步异景、曲径通幽、师法自然、天人合一” 的造园精髓,打造双水系原生环绕、中央景观轴、江南风情园林、坊巷景观、庭院造景、滨水步道、四季林荫道、假山叠水、亭台楼阁、曲桥回廊、景观小品的多维东方生态体系,将原生湿地绿意与江南园林意境无界引入社区,实现 “城央繁华与坊巷静谧共生、江南文脉与现代人居共生、建筑与自然共生、院落与园林共生、人与湿地共生” 的诗意栖居。社区被双水系原生环绕,北侧、东侧均有天然河道,沿河打造约 8000㎡滨水公园、亲水平台、休闲步道、景观亭台、叠水喷泉、曲桥回廊,河水清澈、绿植环绕、鱼鸟嬉戏、野趣盎然,日常可以漫步江岸、骑行健身、观赏河景、休闲野餐、垂钓赏鱼,感受河风拂面、绿意环绕、流水潺潺、野趣自然,享受滨江生态的惬意。社区内部以 “三街九坊十八巷” 为骨架,串联中央景观主轴、阳光草坪、假山叠水、亭台楼阁、曲桥回廊、四季花坛、休闲步道、亲子花园、长者雅集空间、坊巷绿植、庭院造景,一步一景、移步异景,曲径通幽、绿意盎然、文化感十足、东方韵味浓郁。园林内种植香樟、银杏、桂花、白玉兰、水杉、海棠、腊梅等上海本土名贵树种与江南特色花木,搭配四季花卉与景观绿植,实现 “春季繁花似锦、夏季绿树成荫、秋季金桂飘香、冬季静谧雅致” 的四季景观,社区 PM2.5 浓度常年低于市区 25% 以上,负氧离子含量极高,是真正意义上的天然氧吧、生态秘境、湿地桃花源、江南诗意园。
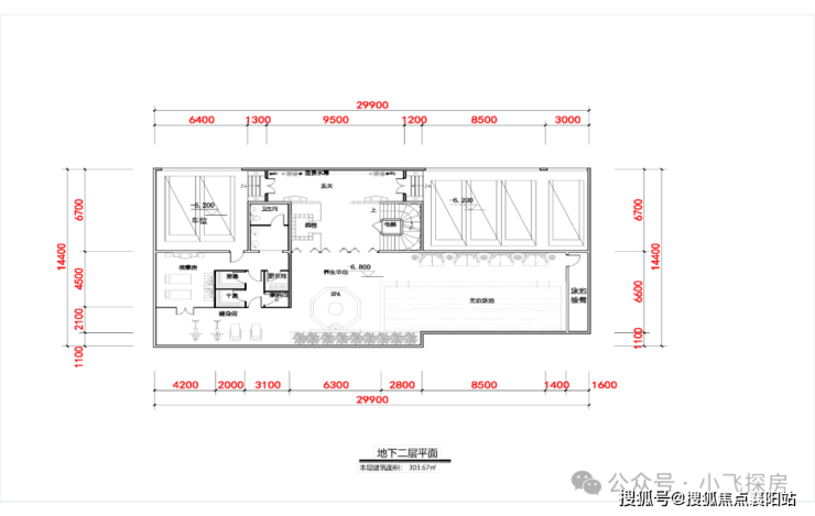
社区实行全人车分流设计,车辆从社区入口直接驶入地下车库,地面完全留给行人与景观、坊巷与庭院,彻底告别车辆穿行带来的噪音、尾气与安全隐患。车位配比高达1:1.15,共 1089 个地下车位,全部预留充电桩接口,充分满足高净值家庭多车需求(豪车、商务车、家用车、保姆车、越野车),无需为车位争抢;地下车库对标超星级酒店标准精装交付,采用石材包边、超耐磨环氧地坪、环保涂料、明亮整洁、标识清晰、专属电梯直达、24 小时新风系统,私密性与尊崇感拉满。地面社区安静、安全、舒适、私密、纯粹、有礼序、有文化,老人可以在园林中放心散步、晒太阳、聊天、打太极、赏花木;孩子可以在童趣花园自由奔跑、玩耍、交朋友、亲近自然、识花木;业主可以在坊巷步道漫步、赏景、放松身心、冥想静思、品茶香,整个社区只有鸟语花香、绿意盎然、流水潺潺、野趣自然、坊巷静谧、庭院深深,没有车水马龙的嘈杂、没有人员混杂的喧闹、没有文化浅薄的尴尬。
信达上海院子售楼处电话☎:400 9972 099✔欢迎来电咨询! (预约看房热线)可预约销售人员,专业一对一热情服务,让您用专业眼光去买房。
信达上海院子售楼处电话:(预约看房热线)楼盘项目全面介绍,本电话为开发商提供线上预约售楼电话,楼盘项目全面介绍(包含楼盘简介,均价,房价,现房,期房,别墅,叠墅,大平层,价格,楼盘地址,户型图,交通规划,备案价,备案名,项目配套,样板间,开盘时间,认筹时间,楼盘详情,售楼处电话,最新消息,最新详情,周边配套,一房一价,最新进展等详情咨询)楼盘详情丨价格丨更多优惠丨机不可失丨欢迎致电丨诚邀品鉴!售楼处位置丨特价房丨工抵房丨剩余房源丨户型图丨最新消息丨免责声明:将文章内容综合来源于网络、只作分享,版权归原作者所有!!如有侵权,请联系我们,我们第一时间处理如有问题欢迎来电咨询,专业一对一热情服务,让您用专业眼光去买房。如果您想了解更多楼盘详情,欢迎提前预约拨打信达上海院子售楼处电话
房产知识一百条
1、什么是房产:房屋产权的简称。
2、什么是地产:是指土地财产。
3、什么是房地产:是房产和地产的总称。
4、什么是房地产业:从事房地产开发、建设、经营、管理以及维修、装饰和服务的综合性产业。
5、什么是房地产开发:是指在依法取得土地使用权的土地上按照使用性质的要求进行基础设施、房屋建筑的活动。
6、什么是土地开发:是将“生地”开发成可供使用的土地。
7、集体土地是指:农村集体所有的土地。
8、征用土地是指:国家为了公共利益的需要,可依照法律规定对集体所有的土地实行征用。
9、什么是土地所有权:是指国家或集体经济组织对国家土地和集体土地依法享有的占有、使用、收益和处分的权能。
10、什么是土地使用权的出让:指国家以协议、招标、拍卖的方式将土地所有权在一定年限内出让给土地使用者,由使用者向国家支付土地使用权出让金的行为。
11、什么是土地使用权转让:是指土地使用者通过出售、交换、赠与和继承的方式将土地使用权再转移的行为。
12、什么是地籍、产籍:是对在房地产调查登记过程产生的各种图表、证件等登记资料,经过整理、加工、分类而形成的图、档、卡、册等资料的总称。
13、生地是指:不具备开发条件的土地。
14、熟地是指:已完成三通一平(水、电、道路,土地平整)或七通一平,具备开发条件的土地。
15、什么是宗地:是地籍的最小单元,是指以权属界线组成的封闭地块。
16、什么是宗地图:是土地使用合同书附图及房地产登记卡附图。它反映一宗地的基本情况。包括:宗地权属界线、界址点位置、宗地内建筑位置与性质、与相邻宗地的关系等。
17、证书附图是指:房地产后面的附图,主要反映房地产情况及房地产所在宗地情况。
18、什么是物业管理:泛指一切有关房地产开发、经营、商品房销售、租赁及售后服务。
19、什么是业主委员会:是在物业管理区域内代表全体业主实施自治管理的组织。是代表
物业全体业主合法权益的社会团体,其合法权益受国家法律保护。
20、业主委员会是如何产生的:由业主大会从全体业主中选举产生。
21、住房补贴是指:国家为职工解决住房问题而给予的补贴资助。
22、房屋的所有权是指:对房屋全面支配的权利。
23、房地产交易的两种主要形式是:地产交易形式与房产交易形式。
24、建筑物是指:人工建造而成的房屋和构筑物。
25、构筑物是指:建筑物中除房屋以外的东西。
26、什么是期房:是指消费者在购买时不具备即买即可入住的商品房。
27、期房是如何介定的:房地产开发商拿到商品房预售许可证开始至取得房地产权证大产证或竣工验收合格可以直接入住使用)为止。
28、什么是预售合同:消费者在购买期房时签定的销售合同。
29、什么是现房:是指消费者在购买时具备即买即可入住的商品房,即开发商已办妥所售的商品房的大产证(或已经竣工验收合格并交付使用)的商品房。
30、什么是毛坯房:房地产商交付屋内只有门框没有门,墙面地面仅做基础处理而未做表面处理的房叫毛坯房。
31、什么是成品房:是指对墙面、天花、门套、地板实行装修。
32、什么是商品房:是指以完全的市场价格向购房者出售的房子。
33、商品房预售是指:在房地产尚未建成以前,房地产的经销商在取得受买人一定数量的定金后,将期房出售给受买人。
34、商品房现售是指:指房地产开发企业将竣工验收合格的商品房出售给买受人。
35、二手房通常指的是:再次进行买卖交易的住房。
36、经济适用房指的是:面向中低收入家庭的普通住宅。
37、例出3种以上的安居房的种类:准成本房、全成本房、全成本微利房和社会微利房。
38、低层住宅的介定:1-3层的住宅。
39、多层住宅的介定:4-6层的住宅。
40、小高层住宅的介定:7-11层的住宅。
41、中高层住宅的介定:12-16层的住宅。
42、高层住宅的介定:16层以上为高层住宅。
43、超高层建筑的介定:总高度超过100米的建筑。
44、商品房的结构是指:房屋主体所使用的施工工艺和用材。
45、钢结构的意思是:承重的主要结构是用钢材料建造的,包括悬索结构。
46、钢混结构的意思是:承重的主要结构是用钢和混凝上建造的。
47、砖木结构的意思是:承重的主要结构是用砖、木材建造的。
48、砖混结构的意思是:主要是砖墙承重,部分是钢盘混凝土承重的结构。
49、框架结构的意思是:以钢筋混凝土浇捣成承重梁柱,再用预制的隔墙分户的结构。
50、开间指的是:一间房屋内一面墙的定位轴线到另一面墙的定位轴线之间的实际距离。
51、进深指的是:一间独立的房屋或一幢居住建筑内从前墙的定位轴线到后墙的定位轴线之间的实际长度。
52、层高指的是:下层地板面或楼板面到上层楼层面之间的距离。
53、净高指的是:下层楼板上表面到上层楼板下表面之间的距离。
54、占地面积指的是:地块的总面积。
55、1亩约等于多少平方米:666.66㎡
56、居住小区总用地指的是什么用地的总和:住宅总用地,公共建筑设施总用地,道路、广场用地、庭院、绿化用地的总和。
57、住宅总用地是指:住宅用地面积的总和。
58、公建总用地是指:小区内部公共建筑占地面积的总和。
59、建筑用地面积的介定:建设用地位置和界线所围合的用地之水平投影面积。
60、建筑基底面积是指:建筑物首层的建筑面积。
61、建筑高度是指:建筑物室外地平面至外墙面顶部的总高度。
62、房屋的基底面积是指:房屋的基底面积是指建筑物底层勒脚以上外围水平投影面积。
63、道路面积是指:小区内宽度大于1.5米道路的面积总和。
64、广场面积是指:停车、回车广场和有铺砌地面的场地面积之和。
65、庭院、绿化面积是指:小区内集中绿化带、小公园,以及公共活动场所等为小区所有居住人员共同使用权的绿化面积的总和。
66、假山、小池算不算庭院、绿化面积:算。
67、人均总占地面积(㎡/人)的计算公式:人均总占地面积=建筑红线内总用地÷本小区规划居住总人数。
68、人均住宅用地面积(㎡/人)的计算公式:人均住宅用地面积=小区内总住宅用地÷本小区规划居住总人数。
69、总建筑面积是指:小区内住宅、公共建筑、人防地下室面积总和。
70、人防地下室算不算在总建筑面积之内:算
71、住宅建筑面积是指:住宅建筑外墙外围线测定的各层平面面积之和。
72、套建筑面积是指:一套房屋的整体面积。
73、套建筑面积的构成是:套内建筑面积和套分摊的公用建筑面积
74、幢(栋)是指:一座独立的,包括不同结构和不同层次的房屋。
75、架空房屋是指:一般为底层架空,以柱子作为承重支撑物的房屋。
76、夹层是指:位于两自然层之间的楼层,指房屋内部空间的局部层次。
77、技术层的意思是:用作水、电、暖、卫生等设备安装的局部层次。
78、技术层层高在多少以上计算层数:2.20米以上的计算层数。
79、结构转换层是指:建筑物某楼层的上部与下部因平面使用功能不同,该楼层上部与下部采用不同结构类型,并通过该楼层进行结构转换,则该楼层称为结构转换层。
80、跃层式住宅是指:一套住宅占两个楼层,由户内楼梯联系上下层,上下两层完全分隔。
81、阁楼是指:利用房屋内的上部空间加建的楼层。
82、阁楼层高在多高以上计算面积:2.20米以上。
83、地上层数是指:即房屋的自然层数,指室内地坪±0.00以上的按楼板结构分层的层高在2.20米以上的楼层数。
84、地上层数用什么数表示:自然数。
85、地下层数是指:采光窗在室外地坪以下的,其室内层高在2.20米以上的地下室的层数。
86、地下层数用什么数表示:负数。
87、房屋总层数是指:房屋的地上层数与地下层数之和。
88、地下层数算不算在房屋总层数之内:算。
89、例出3个以上不算在房屋总层数内的建筑层:假层、夹层、阁楼、装饰性塔楼、楼梯间、水箱间。
90、柱廊是指:有顶盖和支柱,供人通行的建筑物,称为有柱走廊,简称柱廊。
91、骑楼是指:底层为有柱廊房,廊道上方建为楼房的一部分。
92、挑廊是指:指二层以上挑出房屋墙体外,有围护结构,无支柱有顶盖的外走廊。
93、门廊是指:建筑物门前有顶盖,有支柱或围护结构的进出通道。
94、门斗是指:支撑建筑物门前顶盖的是实体墙称为门斗。
95、檐廊是指:房屋檐下方两端有支撑墙体无柱的通道。
96、天棚是指:即天篷,有透明顶篷履盖的屋面。
97、晒台又称什么:露台。
98、露台是指:供人室外活动的上人屋面或底层地面伸出室外的有维护无顶盖的台面。
99、阳台是指:有永久性上盖、有围护结构、有台面、与房屋相连、可以供人活动或利用的房屋附属设施。
100、阳台的分类有:封闭式阳台和半封闭式阳台。
信达上海院子售楼处电话☎:400 9972 099✔欢迎来电咨询! (预约看房热线)可预约销售人员,专业一对一热情服务,让您用专业眼光去买房。
声明:本文由入驻焦点开放平台的作者撰写,除焦点官方账号外,观点仅代表作者本人,不代表焦点立场。
声明:本文由入驻焦点开放平台的作者撰写,除焦点官方账号外,观点仅代表作者本人,不代表焦点立场。
